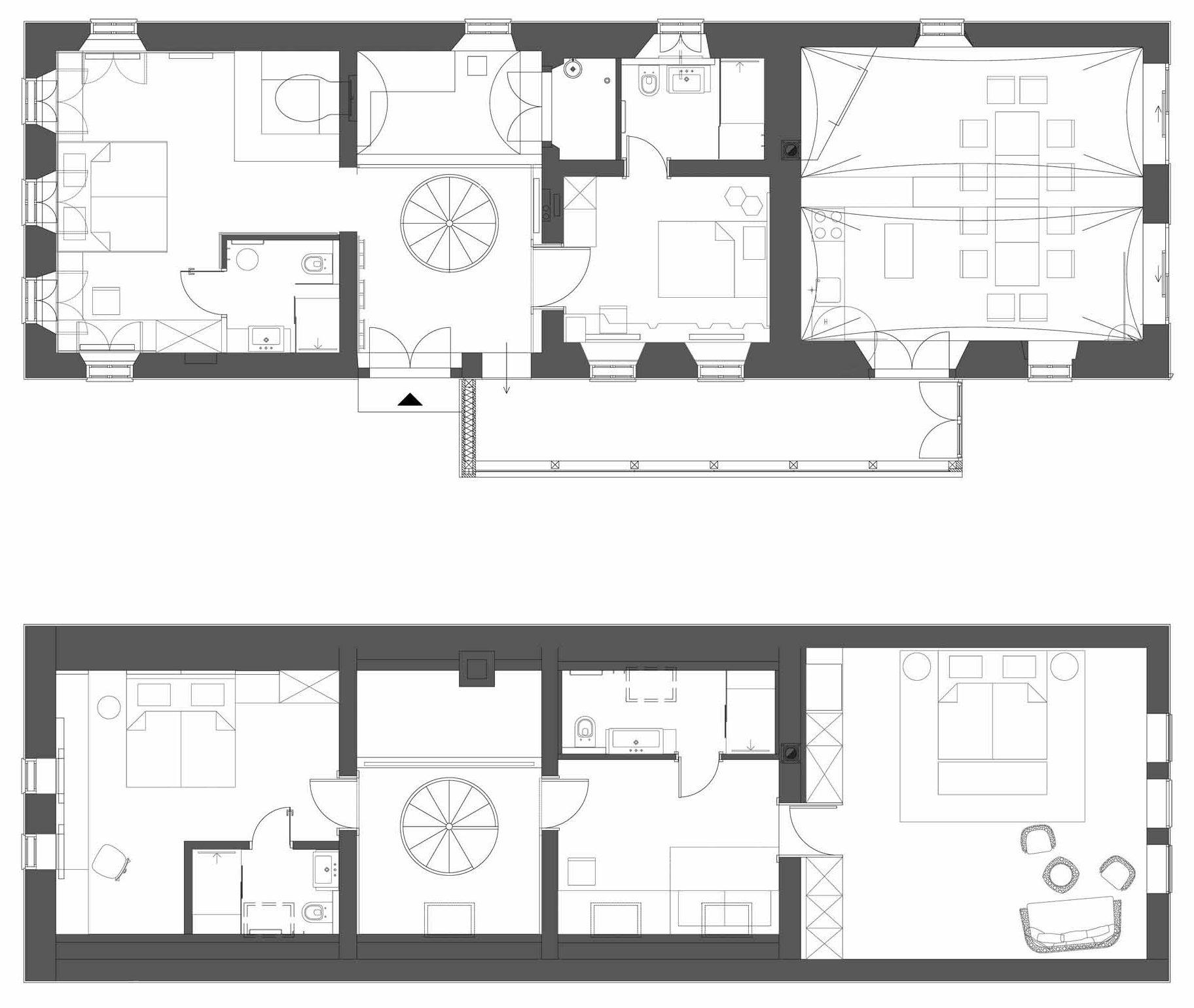
Tradicionalna ribniška hiša je prenovljena v mikro hotel s štirimi tematskimi sobami. Medtem, ko je zunanjost stavbe ostala bolj ali manj nespremenjena, je v notranjosti tradicija spremenjena v prostor za sodobno bivanje. V zasnovi oblikovanja interierja so interpretirane tipične lokalne pokrajine: travnik, pašnik, gozd in senik. Stilizirani so v abstraktnih, arhitekturnih postavitvah, ki ustvarjajo posebno ambientalno izkušnjo za gosta hotela. Posamezni elementi iz pokrajine so izpostavljeni, postanejo osnovni gradniki prostorske postavitve posameznih sob. Skupna zajtrkovalnica s kuhinjo je sodobno oblikovana, posebej poudarek pa ji daje “drevo”, ki kot na središču vasi, bdi nad druženjem gostov. Notranjost Boštjanove hiše se navezuje na zunanjo ureditev in združuje značilnosti tradicionalne vaške kmetije z zahtevami sodobnega načina življenja.
Stavba iz leta 1800, najstarejša ohranjena v Hrovači in prenovljena po konservatorskih standardih ter sodobnih bivanjskih pristopih, dodaja kompleksu Škrabčeve domačije prijazno nastanitveno enoto. Na novo osmišljeni prostori Boštjanove hiše parafrazirajo naravno in kulturno krajino Ribniške doline, odzvanjajo detajle iz preteklosti in jih kombinirajo z najsodobnejšimi elementi ugodja in udobja. Zunanja podoba je zvesto ohranjena, prav tako stavbni volumen, ki se razširja v teraso ter urejen vrt s skulpturo Matjaža Počivavška. Prvotni skedenj je restavriran. Za njim je, skrit pred pogledi od zunaj, zeliščni vrt ter nasad sadnega drevja.
